Sistema de agitación de vidrio
Mecanismos de agitación utilizados en el proceso de fabricación de vidrio plano para el acondicionamiento y la homogeneización del vidrio fundido
En la fusión del vidrio, los agitadores mantienen la mezcla homogénea antes de que llegue a la etapa de moldeo. Este proceso de mezclado reduce problemas como vetas, burbujas o irregularidades, lo que contribuye a que el vidrio se mantenga transparente y con una calidad uniforme. Según la distribución y las necesidades de la planta, los fabricantes pueden elegir entre agitadores horizontales, más fáciles de mantener, o verticales, que requieren menos espacio. Ambos tipos de agitadores están diseñados para mantener la homogeneidad del vidrio fundido, lo que permite que la línea de producción funcione sin problemas y que el vidrio final tenga una calidad más fiable.

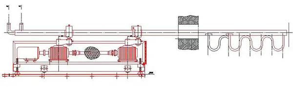
El agitador horizontal se utiliza durante la producción de vidrio plano para mantener la uniformidad de la temperatura y la composición del vidrio fundido. El eje de agitación se extiende dentro del horno, con dientes situados a unos 350 ± 50 mm por debajo de la superficie del vidrio fundido. El eje gira y los dientes agitan el vidrio fundido para generar corrientes de circulación que ayudan a distribuir el calor de manera uniforme, a mezclar el vidrio por completo y a eliminar las burbujas. Esto da como resultado una calidad de vidrio más estable para las siguientes etapas del proceso.
Especificaciones
- Velocidad de agitación: 2-15r/min
- Eje de agitación: Horizontal, con rotación alrededor del centro
- Profundidad de inmersión: 300mm (dependiendo del proceso)
Los agitadores verticales se utilizan en el antehorno (la cámara que transporta el vidrio fundido desde el horno hasta la zona de moldeo) para mantener la estabilidad y uniformidad del vidrio fundido antes de que llegue a la etapa de moldeo. Los mecanismos de agitación vertical incluyen el accionamiento situado sobre el horno, el agitador con su bastidor de soporte y unidades de refrigeración y control. También incorporan herramientas que facilitan su manipulación y mantenimiento. En la parte inferior, las aspas se desplazan a través del vidrio fundido para crear flujos constantes que mantienen el material bien mezclado. Estos flujos chocan e interactúan, lo que ayuda a equilibrar tanto la temperatura como la composición química del vidrio, proporcionando a los productores resultados más consistentes y una mayor calidad del producto final.
Especificaciones
- Velocidad de agitación: 3-15r/min
- Eje de agitación: Agitación vertical, autorrotación
- Profundidad de inmersión: 185 ± 50mm (según el proceso)
- Funciones: El sentido de giro y la profundidad de inmersión de la unidad de agitación se pueden ajustar individualmente.



